Ergonomics - The word finds its roots in Greek, “ Ergo ” means work and “ nomos ” which means law.
Ergonomics (or human factors) is the application of scientific information concerning humans to the design of objects, systems and environment for human use (Definition adopted by the International Ergonomics Association in 2007).
Ergonomics is concerned with the design of systems in which people carry out work. All work systems consist of a human component and a machine component. Ergonomics aims to ensure the human needs for safe and efficient working are met in the design of work systems Ergonomics deals with the design of the efficient system. The basic Components of any systems are Man, Machine and Environment. A system could be simple or complex. A man and a machine is a simple ergo-system. A kitchen is a complex system, wherein man interacts with many machines in parallel in an environment that is dynamic.
Need for Indian Anthropometric Data
Today a majority of products in the market follow standards that are referred from American or European ergonomics standards. In the case of furniture, the case becomes of serious concern since we are talking about work efficiency, personal health over the usage cycle. Wrongly designed systems induce improper postures leading to operational uneasiness. Design of systems without due considerations of body dimensional requirements for intended users causes operational uneasiness, musculoskeletal and sometimes physiological disorders.
Age, sex race and geographical regions, even different occupations influence human body dimensions. From time to time, anthropometric data are generated amongst various populations in different countries and are used as ready references by designers. Experts suggest that anthropometric data to be used for specific groups should be based on the same population groups.
Mass production has brought in the standardization of products across various ranges. Factory-made global products today are designed for a global audience and offer very little flexibility, customization to users across. A bulk of furniture in the Indian market fails to address the issue of designs confining to Indian anthropometric data. In the absence of indigenous design development in furniture and to stay competitive manufacturers often copy existing furniture designs and flood them in the local market. Lately, the trend of imported furniture has caught up in India. Again it must be asked how many of these products suit the Indian anthropometric dimensional requirement. Furniture designs without consideration for the proper body dimensional requirement of intended users do not serve a purpose and have less acceptance value.
Humans come in various shapes, sizes and so do they differ in habits, practices. Indian behaviour also differs from western behaviour; e.g. some Indians prefer sitting on the floor for certain activities and perform a range of activities there. Design should be based on factors like the user’s age, sex and postural considerations.
Applied Indian Anthropometric Data
The table underneath shows key ergonomic parameters used in deciding critical dimensions of the designed prototype
Ergonomics Reference Table 1:
Ergonomics Reference Table 2:
Kitchen Ergonomics
New Era kitchen design is a relatively recent discipline. The initial concept of the work in the kitchen trace back to Catherine Beecher's A Treatise on Domestic Economy (1843). The design included regular shelves on the walls, ample workspace, and dedicated storage areas for various food items. Beecher's "model kitchen" propagated for the first time a systematic design based on early ergonomics. Beecher separated the functions of cooking and food preparation. He repositioned the stove into a compartment adjacent to the kitchen.
Frankfurt kitchen
The idea of efficient kitchen’s evolved from the much-celebrated Frankfurt kitchen. Architect Christine Fredrick in 1927- 28 created the kitchen in a social housing project. The kitchen was analyzed following Taylorist principles using detailed time and motion studies which were published from 1913 in a series of articles on "New Household Management"
Kitchen Work Triangle
The idea of the “ kitchen work triangle ” was formulated at the School of Architecture of The University of Illinois at Urbana-Champaign, founded in 1944 with aims at reducing cost through standardization.
The work triangle is simply an efficient arrangement of three major work points i.e cooking, refrigeration and sink. It is necessary to design an arrangement that cuts down the travelling distances of the user.
1 - Fridge
2 - Sink
3 - Cooktop
4 - Oven
5 - Dishwasher
6 - Overhead cabin
IMG SOURCE: Kitchen work triangle Source: The Small House
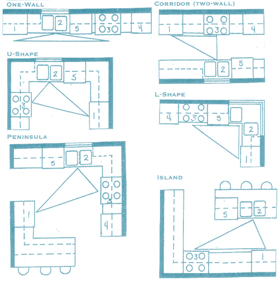
General Ergonomic Guidelines For kitchen Space Planning
-
IMG SOURCE: Kitchen Space Planning: Source: Architect’s data
If you find
This information helpful please share it.
Thanks! For reading the article.






Modern aesthetic design has become a defining part of contemporary living, blending simplicity, creativity, and functionality into visually engaging experiences. From interior wallpapers and wall art to thoughtfully designed drinkware, modern aesthetics emphasize clean visuals, balanced layouts, and refined details that enhance everyday surroundings. These design choices go beyond appearance—they influence mood, create comfort, and allow individuals to express their personal style in subtle yet meaningful ways.https://colornjoy.com/blogs/hello-kitty-wallpapers/hello-kitty-wallpaper-desktop-computer-download-2se0y50i6
ReplyDeletehttps://colornjoy.com/blogs/tropical-wallpapers
https://colornjoy.com/blogs/cat-wallpapers/4k-hd-cute-little-kitten-7dr8t88y4
https://colornjoy.com/blogs/pink-wallpapers-1
In conclusion, creative art-inspired bottles and tumblers are exceptional choices for gift purposes, offering a refined combination of practicality, beauty, and emotional resonance. Their artistic designs, high-quality materials, functional features, and sustainable nature make them suitable for a wide range of recipients and occasions. By choosing such a gift, one offers more than a simple object; one offers a daily companion that reflects creativity, care, and thoughtful living. As modern gifting continues to favor meaningful and design-focused products, art-inspired bottles and tumblers remain timeless and impactful choices.
ReplyDeletehttps://colornjoy.com/products/spooky-doll-halloween-water-bottle-coloring-activity
https://colornjoy.com/products/dragon-adventure-water-bottle-kids-coloring
https://colornjoy.com/products/space-crew-coloring-water-bottle-kids-educational-toy
https://colornjoy.com/products/hedgehog-explorer-coloring-water-bottle-outdoor-toys